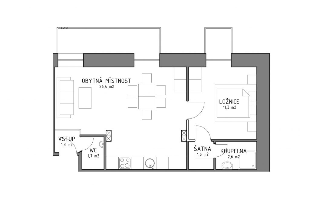
Budova:
Podlaží:
Číslo bytu:
Podlažní plocha:
Dispozice:
Stav:

LF
2
A23
46,5 m2
2+kk
Volný

Máte zájem? Klikněte na tlačítko níže!